2 bed detached bungalow for sale in Westfield Avenue, South Croydon, CR2
See mapGuide Price £525,000
Key features
- Detached Two Bedroom Bungalow
- South Facing Garden
- Close to Schools and Shops
- Two Bedrooms
- Garage with Inspection Pit
- Renovation Project
- Views over Riddlesdown
- Large Loft
- Potential to Extend (Subject to Local Planning)
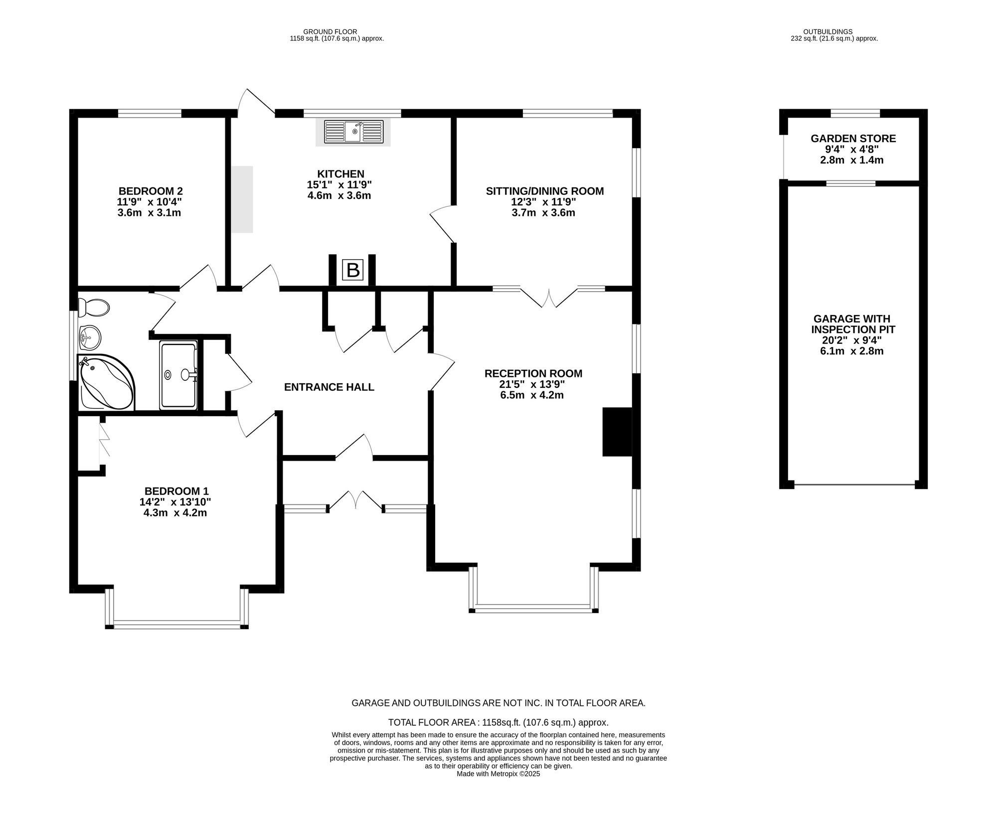
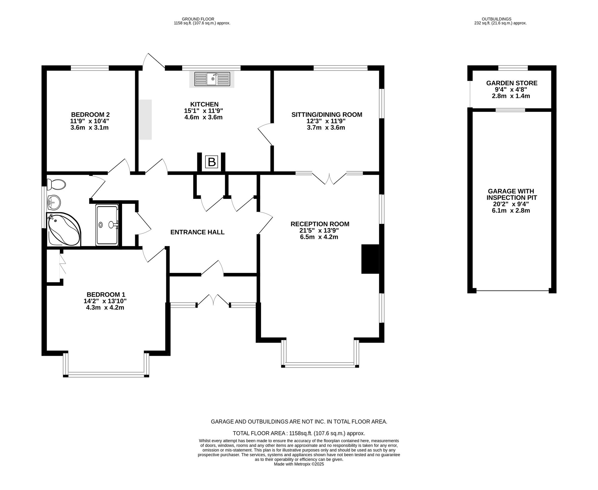
Floorplan

Video
**Guide Price** £525,000-£550,000 Welcome to 5 Westfield Avenue, an opportunity to buy detached on a very sought after road close to local shops and schools.The bus stop is just shy of 200 metres from your front door and you can walk to Sanderstead high street in around 11 minutes.Now, on to the nuts and bolts. Currently this detached bungalow has two bedrooms, a bathroom, a lounge and dining room and a large kitchen. There is also a large entrance hall, a detached garage (with an inspection pit), parking and a sizable south facing garden.There is ample of potential here for extension, both out of the back and up into the large loft (all subject to local planning).
Its an exciting project and well worth a viewing to really get a sense of the space and plot size. We hold keys, so…. what are you waiting for?
Hallway
Lounge
Breakfast/Reception 2
Kitchen
Bedroom 1
Bedroom 2
Bathroom
Read moreHow much is your property worth?
Interested to know the sale or rental value of your property? Get in touch to arrange a free, no-obligation market appraisal.
Book a valuationFurther details
- Status: Sold STC
- Size: 1044.10 sq ft (97 sq m)
- Overall plot size: 6695.16 sq ft
- Council tax band: E
- Tenure: Freehold
- Parking spaces: Garage
- Outside spaces: Private Garden
- Reference: 691166
























